鵬威機械生產的滾軸篩屬于非標定制,根據使用工礦要求設計生產,針對煤礦原煤塊,煤矸石,礦山石礦開采破碎前石料分級給料,火電廠供煤系統,建筑垃圾大塊物料篩選分級使用等。進度材料800-1000mm,處理能力200-500t/h通過碟盤的滾動把不同尺寸和形狀進行分離的分選設備,調節碟盤的間隙,可以達到有效分離尺寸相差較大的物料。滾軸篩處理量是相同體積傳統滾筒篩的4倍,篩分效率更是滾筒篩的2倍。為了使篩上的物料層松動以便于透篩,篩盤形狀有偏心的和異形的。為防止物料卡住篩軸,裝有安全保險裝置。滾軸篩全部為座式,有左傳動和右傳動之分,又分帶走輪和不帶走輪的,帶走輪的可在鋼軌上移動。
滾軸篩是火力發電廠輸煤系統中的篩分設備經過篩分,原煤中小于篩孔的煤落到篩機下方設備,大于篩孔的煤在輸篩面上向前運動被送入碎煤機。由于滾軸篩篩軸是按不同的工作角度布置的,所以當物料在工作角度較高的位置運行時速度較快;當物料在工作角度較低的位置運行時速度較平緩。兩種不同速度運行下的物料,在篩面某一位置相匯時開始做軸向運動,這樣就使物料均勻地分布在篩面上,達到了提高篩分效率的目的。滾軸篩就是通過碟盤的滾動把不同尺寸和形狀進行分離的分選設備,調節碟盤的間隙,可以達到有效分離尺寸相差較大的物料。碟型篩處理量是相同體積傳統滾筒篩的4倍,篩分效率更是滾筒篩的2倍。
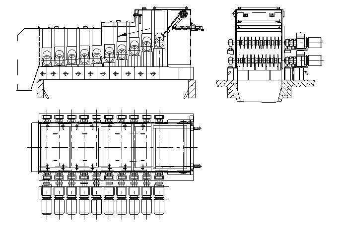
滾軸篩用于分離小于規定尺寸的物料,篩盤采用蝶形結構,設置有均勻分布的轉軸,沿轉軸的軸向設有若干篩盤,篩盤表面都采用陶瓷噴漆,具有防腐和耐磨雙重效果。轉軸通過驅動設備驅動旋轉,物料進入設備后,大于篩盤間隙的物料從篩盤上方輸送到下道工序,小于篩盤間隙的物料則從間隙處落入下方的收集皮帶,由收集皮帶輸送出設備。
滾軸篩特點:
1、處理量可至500-1000t/h;
2、采用碟盤等多個結構來設定篩孔尺寸,25~120mm篩孔可任選,均可定制化設計制作;蝶形,橢圓形,菱形等。
3、可替代滾筒篩,處理量是相同體積傳統滾筒篩的4倍,篩分效率更是滾筒篩的1.5倍;
4、采用變頻驅動控制方式,能耗低,安全性高,處理量可調;
5、特制耐磨鏈輪,鏈式聯動,張緊鏈條設計,運行穩定性高;
6、模塊化設計,可根據客戶要求選擇合適的模塊數量,方便維護和結構調整;
7、產能、分選效果上已經大大超越了滾筒篩,棒條篩和振動篩等傳統篩分設備;
滾軸篩主要由前篩箱、中篩箱、后篩箱、下篩箱、篩軸及煤擋板六部分組成,所有殼體均由鋼板焊接而成,箱體內兩側固定有耐磨襯板,大大提高了設備的壽命。篩機的篩軸部件分別坐落在機座兩側的軸承座支架上 , 每根篩軸都直接連接著1 組傳動機構。為便于制造和維修 ,篩箱與機座、電機底座與機座、篩箱側板組件和蓋板之間靠螺栓連接。在篩機入料端設置了1個利用電動推桿機構控制的旁路翻板裝置 ,不僅可以用于系統中出現意外故障時臨時卸料 ,而且當來煤粒度較小時也可直接從旁路通過。因此 ,煤流既可經篩面篩分 ,又可以經旁路通過。
香蕉形滾軸篩有幾根裝有數片梅花形篩片的篩軸 ,并列安裝在機體上構成香蕉形篩面 ,采用機械傳動與電機相連。每根篩軸由小功率電機單獨傳動 ,利于檢修和維護。篩機的滾軸按3種不同角度順篩機縱向排列 ,并按同一方向旋轉 ,以使物料不僅在篩面上不斷向前運動 ,而且不斷攪拌。
滾軸篩技術參數:
| 型號 |
篩面寬度 (mm) |
軸數 |
出力 (t/h) |
篩孔尺寸 (mm) |
減速機 | 電動機 |
電機功率 (kw) |
電機轉速 (rpm) |
減速機速比 |
篩軸轉速 (rpm) |
長×寬×高 (mm) |
||
| 型號 | 臺數 | 型號 | 臺數 | ||||||||||
| GZ10-06A | 1000 | 6 | 300 | 55×65 |
YZX132M121 YZX132M221 |
6 | YGb132M2-10 | 6 | 6×1.25 | 550 | 5.47 | 100.5 | 2170×1955×1300 |
| GZ10-09A | 1000 | 9 | 500 | 55×65 |
YZX132M121 YZX132M221 |
9 | YGb132M2-10 | 9 | 9×1.25 | 550 | 5.47 | 100.5 | 3100×1955×1300 |
| GZ10-12A | 1000 | 12 | 700 | 55×65 |
YZX132M121 YZX132M221 |
12 | YGb132M2-10 | 12 | 12×1.25 | 550 | 5.47 | 100.5 | 4030×1955×1300 |
| GZ14-09A | 1400 | 9 | 1000 | 60×80 |
YZX132M121 YZX132M221 |
5 4 |
YZG132M1 YZG132M2 |
5 4 |
4×3.7 |
908 915 |
12.5 |
72.6 73.2 |
3440×2691×1500 |
| GZ14-12A | 1400 | 12 | 1200 | 60×80 |
YZX132M121 YZX132M221 |
7 5 |
YZG132M1 YZG132M2 |
7 5 |
7×2.2 5×3.7 |
908 915 |
12.5 |
72.6 73.2 |
4400×2691×1500 |
| GZ14-15A | 1400 | 15 | 1500 | 60×80 |
YZX132M121 YZX132M221 |
9 6 |
YZG132M1 YZG132M2 |
9 6 |
9×2.2 6×3.7 |
908 915 |
12.5 |
72.6 73.2 |
5360×2691×1500 |
| GZ18-12A | 1800 | 12 | 1500 | 60×80 |
YZX132M121 YZX132M221 |
7 5 |
YZG132M1 YZG132M2 |
7 5 |
7×2.2 5×3.7 |
908 915 |
12.5 |
72.6 73.2 |
4400×3091×1800 |
| GZ18-15A | 1800 | 15 | 2000 | 60×80 |
YZX132M121 YZX132M221 |
9 6 |
YZG132M1 YZG132M2 |
9 6 |
9×2.2 6×3.7 |
908 915 |
12.5 |
72.6 73.2 |
5360×3091×1800 |
| GS18-18A | 1800 | 18 | 2500 | 60×80 |
YZX132M121 YZX132M221 |
11 7 |
YZG132M1 YZG132M2 |
11 7 |
11×2.2 7×3.7 |
908 915 |
12.5 |
72.6 73.2 |
6320×3091×1800 |
更多設備詳情可咨詢河南鵬威機械設備有限公司!
鵬威機械廠家提示:請通過正規渠道購買鵬威機械產品,官網:www.zdsfjx.com-www.banweiji.com以保障您的合法權益!
鵬威機械設備有限公司竭誠為您服務:訂購咨詢電話:1 3 3 0 3 7 3 8 6 7 2


