振動篩機械有很多在種類,篩分原理也不一樣,使用環境也不一樣。有礦用的大型振動篩,精細篩粉振動篩等。奧創機械生產三次元振動篩分過濾機、旋振篩、直線振動篩、搖擺篩、礦用振動篩等篩分設備行業使用范圍廣。下面奧創機械為大家整理多種振動篩的原理圖及結構圖。
圓振篩:
圓振動篩是一種做圓規律振動、多層數、高效新型振動篩,具有結構可靠、激振力強、篩分效率高等特點。采用高強度錳鋼制作對于硬度較高、大塊狀物料有較強的耐沖擊力比如煤碳、碎石、鵝卵石等,可根據實際情況配備橡膠彈簧有效減小運行中的噪音。圓振動篩與普通振動篩最的的區別在于采用激振器偏心塊作為動力源篩分過程中有足夠的彈跳力避免物料卡槽影響篩分透網率。圓振動篩分為單層式和雙層式多應用于電力、礦山、洗煤廠、建材等行業作為干式篩分的最佳選擇。
搖擺篩:
方型搖擺式振動篩將振動器發生振動加搖擺運動,傳至篩面,從而使物料在篩機前部迅速分散,從而達到高效篩分之目的.方形搖擺篩可廣泛應用于化工、食品、冶金非有色金屬、有色金屬、磁性材料等.單純追求篩分精度會犧牲產量為代價,而追求大產量又會使得精度下降,方形搖擺篩是針對上述問題而專門設計的一種具有高精度大產量的高效振動篩分設備.通過方形搖擺篩將振動器發生振動加搖擺運動,傳至篩面,從而使物料在篩機前部迅速分散,從而達到高效篩分之目的.
旋振篩:
旋振篩是一種高精度細粉篩分機械,其噪音低、效率高,快速換網需3-5分鐘,全封閉結構,適用于粒、粉、粘液等物料的篩分過濾。旋振篩是由直立式電機作激振源,電機上、下兩端安裝有偏心重錘,將電機的旋轉運動轉變為水平、垂直、傾斜的三次元運動,再把這個運動傳遞給篩面。調節上、下兩端的相位角,可以改變物料在篩面上的運動軌跡。
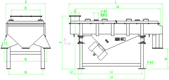
直線篩:
直線振動篩(不銹鋼直線篩)是在一般直線振動篩的基礎上將材質改為不銹鋼材料,非常實用于化工、食品、醫藥等行業,具有一定的耐腐蝕性。篩分精度高、處理量大、結構簡單、耗能少、噪音低、篩網使用壽命長、密封性好、極少粉塵溢散、維修方便。往往配合其他機械設備、如輸送機、提升機、破碎機等,完成整個流水線的自動化作業。不銹鋼直線振動篩用振動電機作為振動源,使物料在篩網上被拋起,同時向前作直線運動,物料從給料機均勻地進入篩分機的進料口,通過多層篩網產生數種規格的篩上物、篩下物、分別從各自的出口排出。因為物料運行軌跡為直線運動,因此稱為直線篩或直線振動篩。
更多詳情可咨詢河南奧創機械設備有限公司!
奧創機械廠家提示:請通過正規渠道購買奧創機械產品,m.1585.org.cn---www.dianji88.com以保障您的合法權益!
奧創機械設備有限公司竭誠為您服務:訂購咨詢電話:1 3 3 0 3 7 3 8 6 7 2


