中國是礦資源大國部分礦種儲量居世界前茅,能源礦山等行業一度崛起,鋁土礦是生產金屬鋁的最佳原料,也是最主要的應用領域,其用量占世界鋁土礦總產量的90%以上。鋁土礦的應用領域有金屬和非金屬兩個方面是很多社會發展需求的資源,對于礦土的篩分作業,ZSG振動篩是專業的礦山篩分機械設備。奧創對于鋁土礦振動篩有著很多年的生產經驗,ZSG系列高效直線振動篩具有體積小,重量輕,能耗低,便于安裝等特點。
現廣泛應用于冶金、礦山、煤炭、建材、電力、化工等大塊狀物料及中小顆粒物料的振動篩分領域,其中,冶金行業用途最為廣泛。ZSG高效直線振動篩是高爐槽下、焦化廠、選礦廠常用的篩分機械。ZSG高效重型篩由于采用振動電機作為振動源,使用橡膠彈簧支撐并隔振,所以處理量比較大,篩分效率很高,同時其篩網的安裝傾角較大,拼塊組裝篩板,更換方便,使用壽命更長。
ZSG高效直線振動篩還可選用普通電機過聯軸器帶動激振器間接驅動的方式作為振動源,可滿足不同環境需要。篩網材質選擇多樣,金屬編織網、棒條、鑄造、焊接、沖孔等形式都可選用,篩面既有單層結構也可多層布置,可滿足不同振動篩分作業要求。
工作原理:
ZSG系列高效直線振動篩(ZSG礦用重型振動篩)是利用兩個振動電機同步反向放置,使激振器產生反向激振力,從而使篩體帶動篩網做縱向運動,使振動篩上物料受激振力而周期性向前拋出一個射程,物料落下時小于篩孔的物料透篩而落到下層,物料在篩網表面的運動軌跡為拋物運動,由于這種周而復始的物料運動,物料從入料端落入篩箱后,迅速前進、松散、透篩,最終完成物料的篩分作業。
特點:
1、設計合理,造型美觀,結構簡單、實用、耐用;
2、篩分效率高,篩分能力大;
3、體積小,重量輕,安裝簡單方便;
4、能耗低,有效節約大量能源;
5、價格低,經濟實用,備件量少;
6、拼塊組裝篩板,篩網傾角大,更換方便,壽命長;
7、多種型號選擇。
ZSG高效重型篩由振動源、篩體、篩網、減振裝置及底架組成,篩箱由篩框、篩板、襯板組成,篩板側板采用優質鋼板制作而成,側板和橫梁、激振器底座采用高強度螺栓或環槽鉚釘連接,結構合理,堅固耐用。
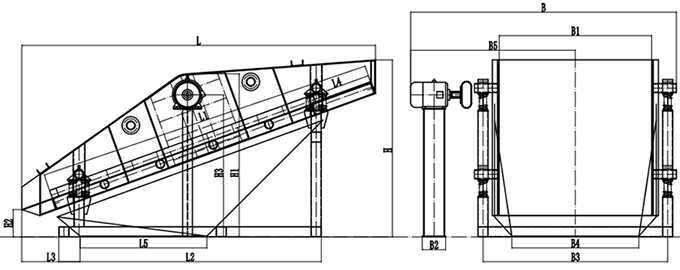
外形尺寸:
技術參數:
奧創機械廠家提示:請通過正規渠道購買奧創機械產品,m.1585.org.cn---www.dianji88.com以保障您的合法權益!
奧創機械設備有限公司竭誠為您服務:訂購咨詢電話:1 3 3 0 3 7 3 8 6 7 2


