直線振動篩工作原理就是采用雙激振器驅動,當兩臺激振器做同步、反向旋轉時,其偏心塊所產生的激振力在平行于電機軸線的方向相互抵消,在垂直于電機軸的方向疊為一合力,因此篩機的運動軌跡為一直線。但是傾角一般情況下直線振動篩是水平放置的,因為直線振動篩設計的振動方向角為45°,水平放置的效果就是能夠使篩機的各項性能參數都合理配置,獲得好的物料運行速度及處理量和較高的篩分效率。奧創生產的直線振動篩是一種采用兩個具有相同質徑積激振電機的振動篩。為了建立該種自同步振動篩簡便而實用的設計方法,考慮其在慣性區工作,略去阻尼力和彈簧力的影響,加上很多科技自主研發的生產的直線振動篩應用于很多行業礦用,化工 輕工 重工業多涉及的到。
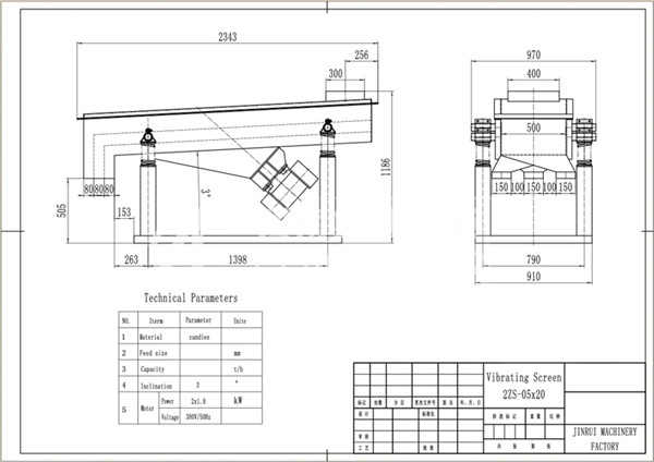
直線振動篩工作原理結構圖:
直線振動篩也是采用慣性激振器來產生振動的,直線振動篩振源有電動機帶動激振器
直線振動篩不走料的原因和放置無關,有可能是一下幾點:
1.振動電機轉向問題:直線篩時使兩臺臥式振動電機作為振動篩,電機的轉向和分為正轉和反轉兩種,正常情況下兩臺電機的轉向是相反方向的,但如果用戶在接電時正負極接錯就會引起電機同向旋轉就會出現篩面物料不走料的問題;
2.電機安裝位置問題:直線篩振動電機的安裝位置有三種分別為底部、兩側、上部。如果振動電機安裝位置靠近進料口就會出現篩面物料運行一定距離后速度降低最終停留在篩面;
3.出料口高出篩面高度:在設計直線篩時如果出料口高于篩面在生產過程中就會出現物料停滯在篩面不下料的問題。直線振動篩不走料多出現在設計生產和接電問題。用戶在為振動電機接電時電機上會有接線提示,在連接時用戶請認真閱讀直線振動篩使用說明書和電機說明書,接電成功后進行式運行,觀察電機轉向如發現轉向相同請立即停機調整電機連接線。在電機線連接正常后如還出現物料停滯不前就應該查看電機安裝位置和出料口高度。出料口高度是可以很直觀的觀察出來,但電機安裝位置是需要技術測定的,所以如果發現以上問題請立即聯系生產廠家。
相關信息:直線篩電機激振器
奧創機械廠家提示:請通過正規渠道購買奧創機械產品,m.1585.org.cn以保障您的合法權益!
奧創機械設備有限公司竭誠為您服務:訂購咨詢電話:1 3 3 0 3 7 3 8 6 7 2


